Aller au contenu

Salle de sport double

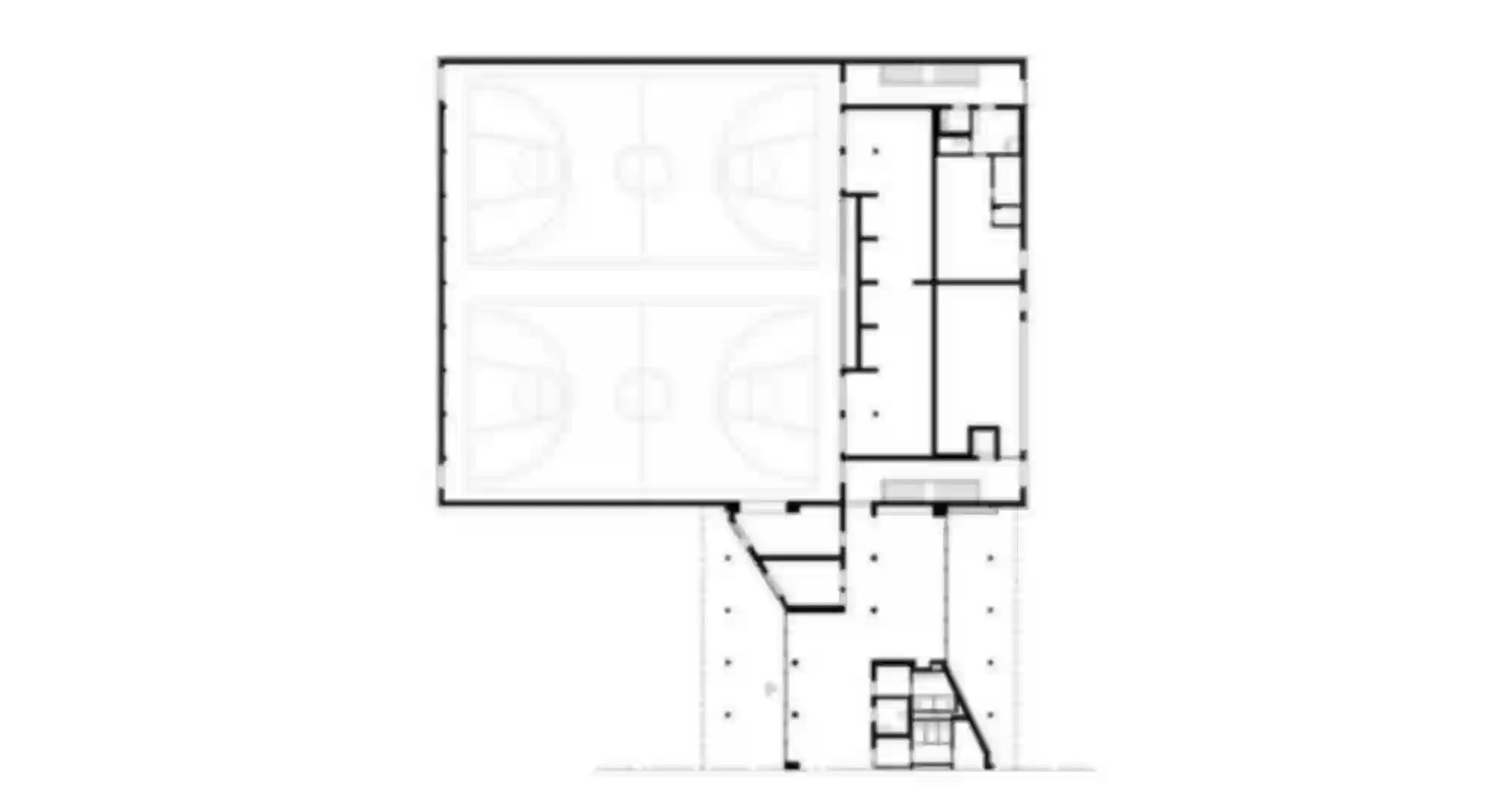
La nouvelle salle de sport double vient remplacer la salle de sport préexistante de l’ensemble scolaire de Niederviehbach. Le projet se glisse sur la parcelle entre les bâtiments découpés de l’école actuelle et ceux de l’école enfantine. Il se présente alors comme un volume indépendant mais étroitement lié au complexe scolaire existant. Le site bénéficie dorénavant d’un foyer commun, dont la fonction est double ; d’une part délimiter un seuil entre quartier et école, avec à l’est l’accès principal et à l’ouest l’accès au préau, et d’autre part relier l'école à la nouvelle salle de sport. La salle de sport en elle-même présente une organisation simple et compacte grâce notamment à la répartition des locaux secondaires sur deux niveaux. Un bardage doré en aluminium habille les façades alors qu’à l’intérieur le béton apparent, du bois clair et des couleurs discrètes dominent.

Lieu

Niederviehbach

Année

2014 – 18

Statut

1er prix, realisé

Projet

Nouvelle salle de sport double

Maître d'ouvrage

Commune de Niederviehbach

Auteurs

Translocal Architecture GmbH
avec r+b landschaftsarchitektur

Photos

Rainer Taepper

Prochain projet: Crèche, Radebeul | D