Aller au contenu

Fondation Alpenruhe

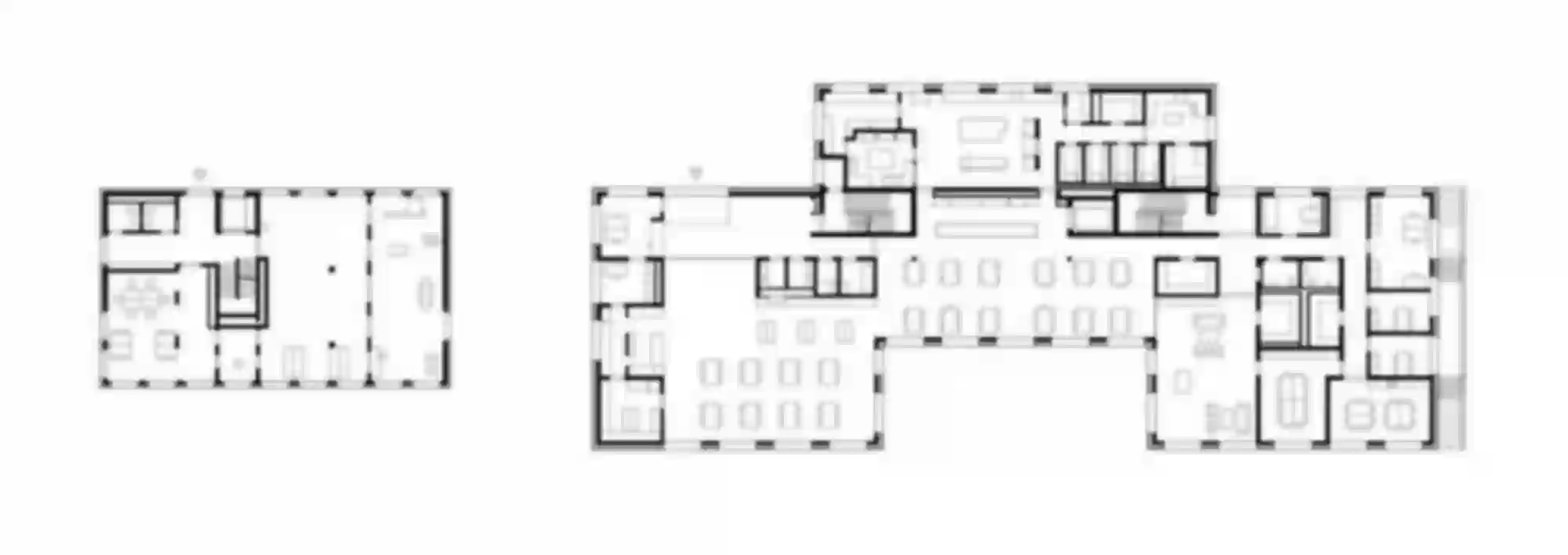
La Fondation Alpenruhe, lieu de vie et de travail, est une institution qui prend en charge, assure les soins et vient en aide aux personnes affectées par un handicap psychique résidant dans le Saanenland. De plus, sa boutique et son zoo en font également depuis longtemps une destination de loisirs très appréciée par les familles et les visiteurs de la région. La réorganisation du complexe offre plus d'espace aux rencontres et faciliter les contacts avec les visiteurs, tout en garantissant aux résidents suffisamment d'intimité et de zones privatives. Le nouveau bâtiment accueille entre autre le foyer et le café ouvert au public au sein d’un volume articulé sur 3 étages. Une partie en saillie au nord sépare les zones d’entrée et de livraison, alors qu’au sud, un retrait de la façade permet de créer une terrasse protégée. Le rez-de-chaussée est dédié à la vie communautaire des utilisateurs, tandis que les étages supérieurs accueillent des groupes résidentiels individuels. Le crépi, le bois et la pierre sont autant de matériaux qui confèrent aux espaces de vie un cadre naturel et agréable. Une interprétation contemporaine de la construction traditionnelle du Saanenland se traduit entre autre par l’expression d’un socle en façade et de la toiture à deux pans.

Lieu

Saanen

Année

2011 – 23

État

1er prix, réalisation (1er étape)

Projet

Nouveau bâtiment principal et transformation ateliers pour les personnes handicapés

Maître d'ouvrage

Fondation Alpenruhe

Auteur

Translocal Architecture GmbH

Photos

Rainer Taepper

Prochain projet: EMS La Résidence, Aigle | CH