Aller au contenu

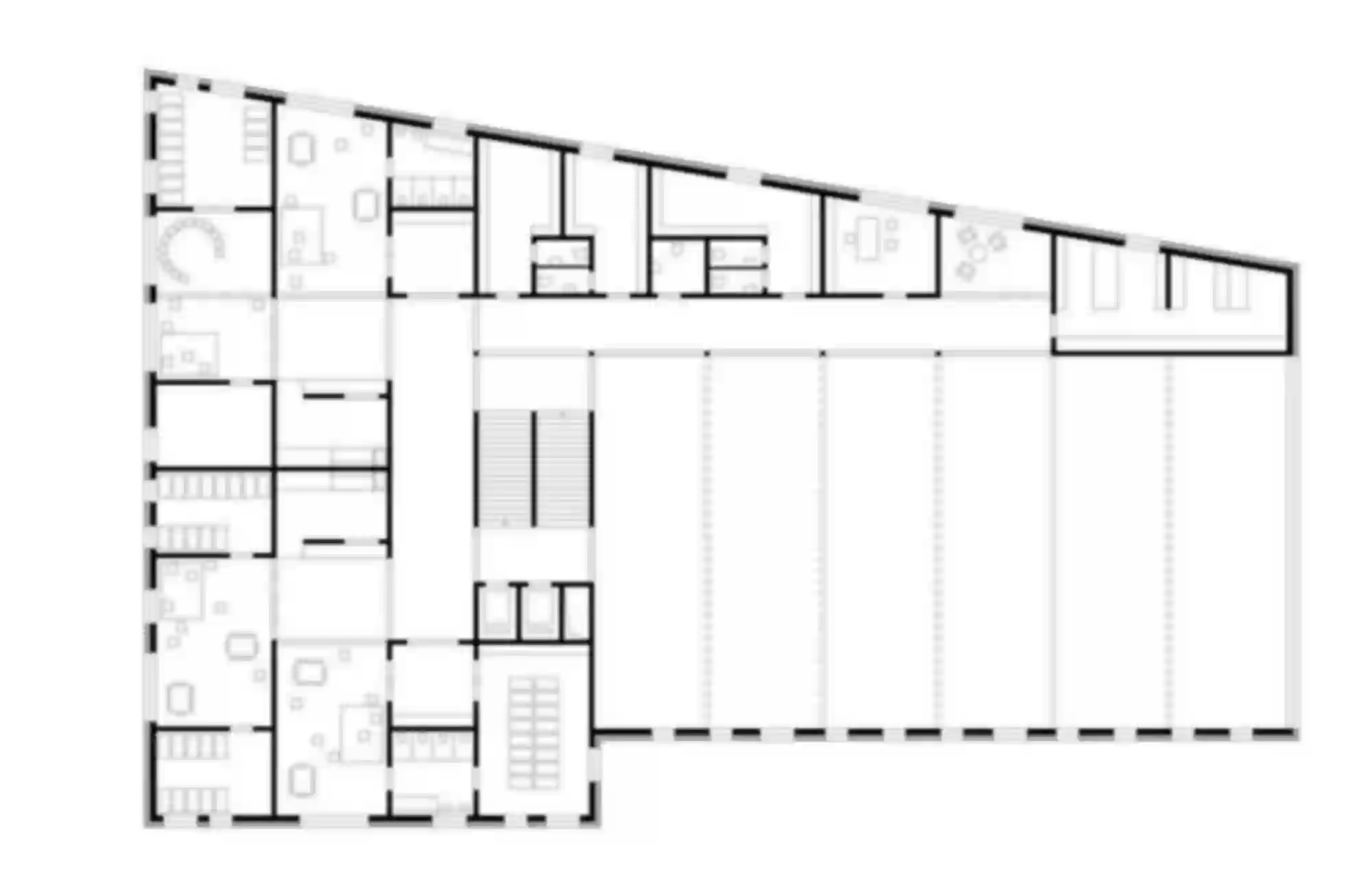
Bâtiment d'équipements publics

Lieu

Genève

Année

2012

État

2e prix

Projet

Crèche, salle de sport, salle polyvalente, salle de groupes et de soin

Maitre d'ouvrage

Ville de Genève, Département des constructions et de l’aménagement

Auteur

Translocal Architecture GmbH

Prochain projet: Maison d'habitation, Sumiswald | CH