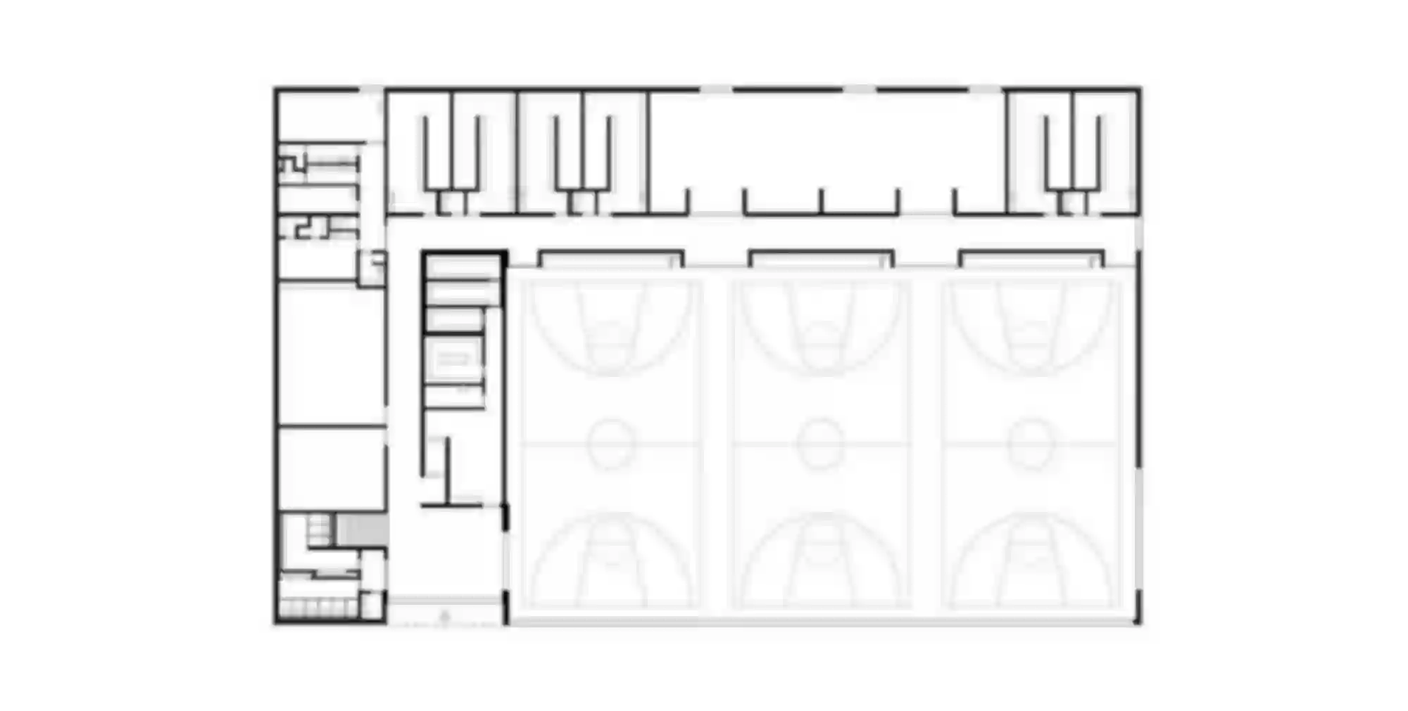
C’est dans un environnement paysager vallonné, au pied des Préalpes, que vient s’implanter sur une butte existante la nouvelle salle de sport triple de Châtel-St-Denis. Entre champs et prairies se confond dans le paysage la construction caractérisée par deux longs pans de toiture faiblement inclinés. La salle est réalisée essentiellement en charpente bois, qu’il s’agisse de la structure de la toiture, des façades ou du bardage extérieur. Le traitement des façades, leur matérialisation et l’exécution des détails confèrent au nouveau bâtiment un caractère unique.
Châtel-Saint-Denis CH
2006 – 09
1er prix + réalisation
Salle de sport triple
Association des communes de la Veveyse pour le CO et Commune de Châtel St-Denis
Translocal Architecture GmbH
avec S. Virdis
Thomas Jantscher