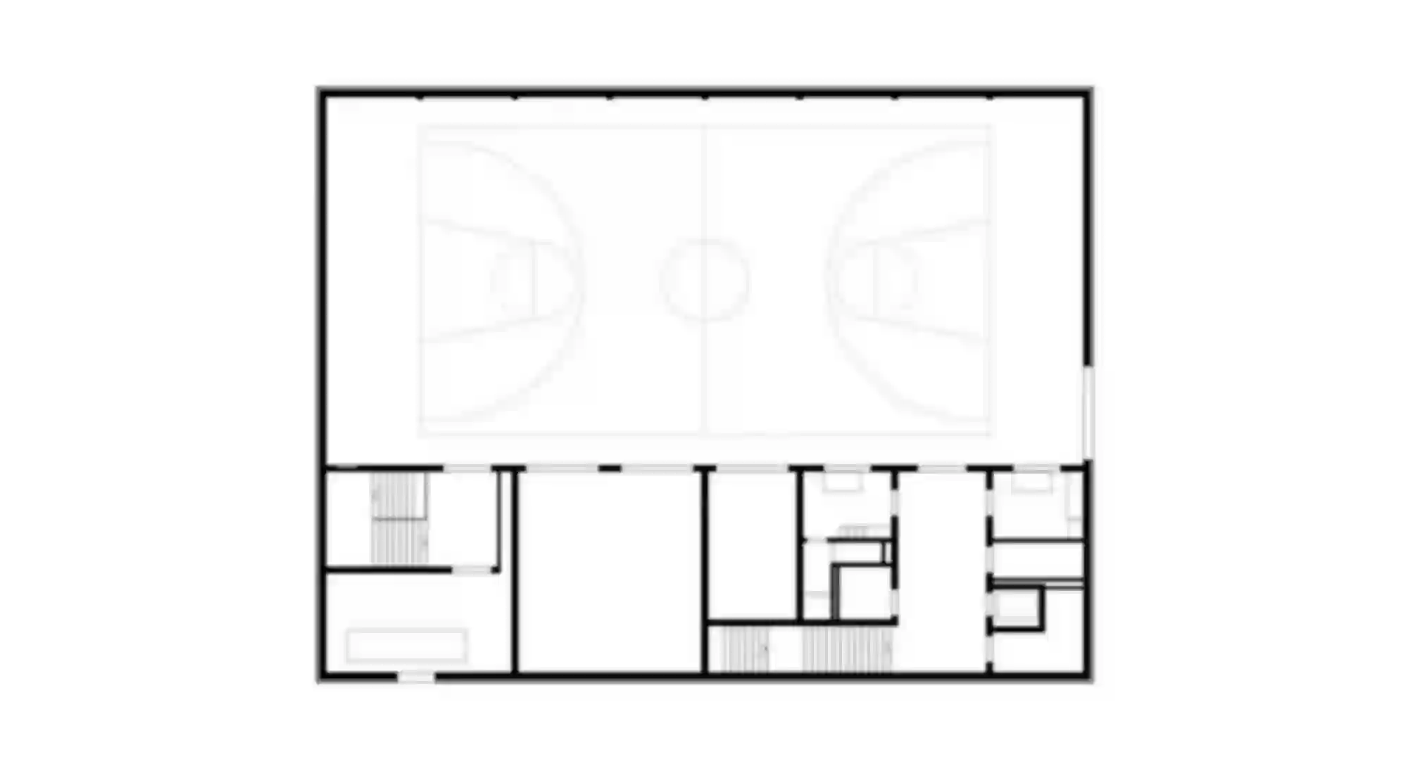
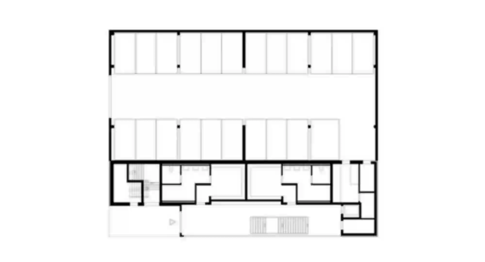
L´école professionnelle hôtelière se situe au centre ville de Dresde, fortement bombardée lors de la deuxième guerre mondiale. Alors que le bâtiment principal avait été rénové dans les années 90, il ne restait comme trace de l'ancienne salle de sport qu’un terrain extérieur. Le nouveau bâtiment de deux étages, une salle de sport simple disposée au-dessus d'un parking de plain pied, recrée un front de rue et permet, via sa volumétrie, de redéfinir adéquatement l’angle de l’îlot urbain. Le traitement des façades, revêtues de briques et perforées dans la partie basse abritant le parking, instaure un dialogue avec la centrale électrique historique située à proximité. A l'intérieur, des matériaux simples et durables tels que le bois et le béton définissent l'atmosphère de la salle.
Dresde
2018 – 21
Commande directe, en réalisation
Salle de sport, parking
Ville de Dresde
Translocal Architecture GmbH