Zum Inhaltsbereich springen

Altersheim La Venoge

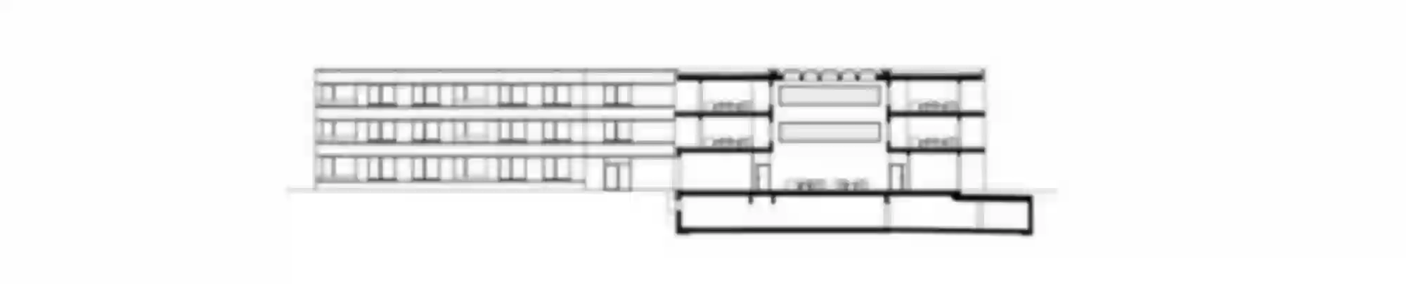
Die Stiftung La Venoge entwickelt gemeinsam mit der Cooperative Primavesta ein neues, lebendiges Zentrum mit vielfältiger Nutzung. So entstehen neben dem Altersheim und 17 betreuten Wohnungen auch Verkaufs- und Praxisräume sowie ein Restaurant für das Quartier. Die öffentlichen Bereiche belegen einen Grossteil der Erdgeschosszone. Die Obergeschosse beherbergen die Wohneinheiten des Altenheims. Ein Gebäudeflügel des Neubaus ist vollständig dem betreuten Wohnungen vorbehalten. Die Nähe der unterschiedlichen Nutzungseinheiten ermöglicht den Bewohner/innen trotz eingeschränkter Mobilität die Teilhabe am öffentlichen Leben jenseits der eigenen vier Wände. Nach aussen wirkt die innere Vielfalt als Einheit. Eine weich ausformulierte mineralische Fassade aus Beton und Putz verbindet die drei Gebäudeteile zu einem einheitlichen Ensemble.

Ort

Penthalaz

Jahr

2012 – 21

Stand

1. Preis, Realisierung (1. BA)

Projekt

Erweiterung und Sanierung Pflegeheim,
Betreutes Wohnen, Gewerbe

Auslober

Fondation La Venoge
und Cooperative Primavesta

Verfasser

Translocal Architecture GmbH

Fotos

Rainer Taepper

Nächstes Projekt: Wohnheim Stiftung Alpenruhe, Saanen | CH